5x20m – là con số quen thuộc nhưng không bao giờ cũ.
Với kiến trúc sư, nó không hẳn là diện tích, mà còn là một “tỉ lệ vàng” để thử nghiệm cho những ý tưởng mới, cho những giải pháp đột phá. Thiết kế nhà phố 5×20 hiện đại không đơn thuần là bài toán trong công năng – đó là câu chuyện của ánh sáng, vật liệu, không khí và tiện ích sống.
Bài viết này không chỉ đưa đến bạn những mẫu nhà đẹp – mà còn bóc tách cách tư duy bố trí mặt bằng, lựa chọn phong cách nội thất và tối ưu từng không gian – giúp bạn hiểu rõ tại sao 5×20 luôn là sân chơi thú vị cho những thiết kế hiện đại đầy cảm hứng.
Những xu hướng thiết kế nhà phố 5×20 hiện đại nổi bật trong năm 2025
Năm 2025 cũng là thời điểm đánh dấu sự lên ngôi của các giải pháp thiết kế nhà phố 5×20 hiện đại, không chỉ vì tính tối ưu mà còn đáp ứng đúng nhu cầu sống và tiện nghi của cư dân đô thị.
Phong cách tối giản Minimalism
Kiến trúc nhà phố tối giản thường thanh thoát, chú trọng vào các khối không gian sáng tạo
Thiết kế tối giản ngày càng phổ biến với nhà phố diện tích hẹp như 5×20. Các chi tiết rườm rà được loại bỏ, nhường chỗ cho các đường nét kiến trúc thanh thoát, không gian mở liên kết mạch lạc. Xu hướng này nhấn mạnh về giải pháp tối ưu không gian đứng, sử dụng màu sắc trung tính, vật liệu tự nhiên để tạo sự rộng rãi một cách tinh tế.
Tối ưu ánh sáng tự nhiên và không gian xanh
Cây xanh và ánh sáng tự nhiên cũng là gợi ý để ngôi nhà luôn trông thông thoáng và tươi mới
Không gian sống hiện đại không thể thiếu ánh sáng tự nhiên. Các thiết kế nhà phố 5×20 năm 2025 ưu tiên các cửa kính lớn, giếng trời và hệ thống lam chắn nắng thông minh để giúp đưa ánh sáng vào sâu từng ngóc ngách. Bên cạnh đó, sân vườn nhỏ, tiểu cảnh hay ban công có góc cây xanh sẽ giúp ngôi nhà được mát mẻ, gần gũi với thiên nhiên, nâng tầm thẩm mỹ tổng thể.
Mặt tiền hiện đại với vật liệu mới, hình khối độc đáo
Mặt tiền ngôi nhà nổi bật với hình khối vuông vức, được đặt chênh lệch tạo nên những hình khối không bằng phẳng
Phong cách kiến trúc mặt tiền 2025 ưu tiên sử dụng vật liệu mới như kính cường lực, lam bê tông đúc sẵn, thép sơn tĩnh điện,… Với các hình khối vuông vức, đường nét khỏe khoắn, điểm nhấn bằng ánh sáng – tạo nên bộ mặt nhà phố 5×20 vừa sang trọng vừa cá tính, tạo nên cá tính riêng biệt.
Nhà phố thông minh với công nghệ mới
Nhà phố áp dụng công nghệ tự động hóa giúp gia chủ tối đa tiện ích
Xu hướng nhà phố 5×20 hiện đại không thể thiếu các giải pháp nhà thông minh. Hệ thống chiếu sáng, rèm cửa, an ninh, các thiết bị điện được điều khiển từ xa qua smartphone hoặc cảm biến tự động hóa, giúp gia chủ kiểm soát không gian sống mọi lúc mọi nơi, tối đa hóa tiện ích.
Bản vẽ mặt bằng và công năng cho thiết kế nhà phố 5×20 hiện đại
Việc bố trí mặt bằng cùng công năng hợp lý là yếu tố then chốt để tạo nên sự thành công cho thiết kế nhà phố 5×20 hiện đại, giúp tối ưu không gian sống và nâng cao trải nghiệm sinh hoạt cho gia đình.
Bản vẽ mặt bằng nhà phố 5×20 hiện đại 1 tầng
1 tầng xuyên suốt tích hợp đủ các không gian chức năng phù hợp cho gia đình nhỏ
Mẫu thiết kế nhà phố 5×20 hiện đại 1 tầng phổ biến thường bao gồm không gian mở giữa phòng khách và bếp ăn, giúp tạo cảm giác rộng rãi, liền mạch. Căn nhà được bố trí 2-3 phòng ngủ, kết hợp cùng giếng trời hoặc sân sau nhỏ để tối ưu ánh sáng tự nhiên. Đây được xem là giải pháp lý tưởng cho gia đình nhỏ hoặc người lớn tuổi muốn sử dụng toàn bộ chức năng trên một mặt phẳng trong thiết kế nhà phố 5×20 hiện đại.
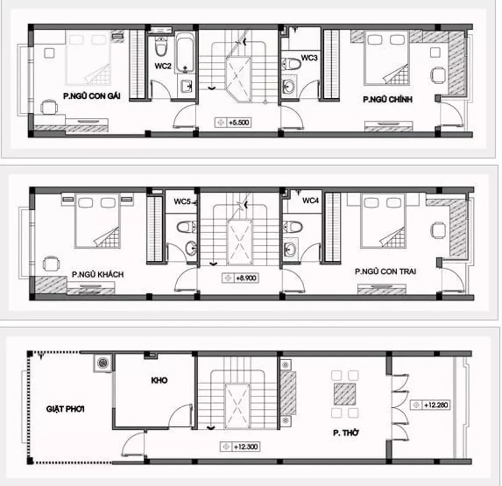
Bản vẽ mặt bằng nhà phố 5×20 hiện đại 2 tầng
Nhà phố 2 tầng giúp diện tích sử dụng rộng hơn, nới rộng tiện ích cùng cách lấy sáng hiệu quả để không gian sống thông thoáng
Thiết kế nhà phố 5×20 hiện đại 2 tầng là lựa chọn phổ biến cho gia đình có diện tích sử dụng lớn hơn nhưng vẫn tiết kiệm được quỹ đất. Tầng 1 thường được dùng để bố trí phòng khách, bếp cùng vệ sinh chung. Tầng 2 sẽ gồm 2 đến 3 phòng ngủ, phòng thờ và khu phơi đồ hoặc ban công. Cầu thang hợp lý, có thể có thêm giếng trời để đảm bảo không gian nhà phố 5×20 thoáng đãng, nhận đủ ánh sáng tự nhiên và thông gió hiệu quả.
Mẫu thiết kế nhà phố 5×20 hiện đại có 3 tầng hoặc gác lửng
Các không gian được phân bổ hợp lý, có thêm không gian cho nghỉ dưỡng và thư giãn
Với các gia đình đông người hoặc có nhu cầu mở rộng, thiết kế nhà phố 5×20 có 3 tầng hoặc gác lửng phù hợp để tận dụng tối đa diện tích. Tầng trệt là không gian sinh hoạt chung, các tầng còn lại dùng cho phòng ngủ, phòng làm việc hoặc khu giải trí. Thiết kế này tối ưu ánh sáng và không khí nhờ vào các ô cửa sổ lớn và giếng trời đầy sáng.
Lưu ý quan trọng khi bố trí công năng thiết kế nhà phố 5×20 hiện đại
- Ưu tiên không gian mở, liên kết linh hoạt giữa các phòng nhằm tăng diện tích sử dụng và tương tác giữa các thành viên.
- Giảm thiểu tường ngăn cứng, thay vào đó dùng vách ngăn nhẹ, nội thất đa năng hoặc cửa kính để khơi gợi cảm giác rộng rãi hơn.
- Đảm bảo mỗi phòng đều có nguồn sáng tự nhiên, tránh sự bí bách phổ biến trong nhà phố.
- Lựa chọn tông màu sáng và vật liệu hiện đại để giúp không gian nhà phố 5×20 đẹp, thoáng và sang trọng hơn.
Các mẫu thiết kế nhà phố 5×20 hiện đại đẹp, xu thế 2025
Mẫu nhà phố 5×20 hiện đại 1 tầng tiết kiệm chi phí
Ánh sáng tự nhiên được lấy tối đa qua các ô cửa kính xuyên suốt các không gian
Đây là lựa chọn phù hợp với những gia đình nhỏ hoặc người lớn tuổi, yêu thích sự tiện dụng và đơn giản. Thiết kế tận dụng tối đa ánh sáng tự nhiên, không gian mở liên kết phòng khách – bếp tạo nên cảm giác rộng rãi. Vật liệu phổ biến, màu sắc nhẹ và bố trí công năng hợp lý vừa đẹp vừa tiết kiệm ngân sách.
Thiết kế nhà phố 5×20 hiện đại 2 tầng cho gia đình trẻ
Mẫu 2 nhà trở nên phổ biến hơn bởi công năng vừa đủ, chi phí vừa tầm phù hợp cho nhiều gia đình
Mẫu nhà 2 tầng thông thường có mặt tiền sử dụng kính cường lực và lam gỗ tạo điểm nhấn sang trọng, hiện đại. Tầng một bố trí gara, phòng khách, bếp và nhà vệ sinh, tầng hai gồm 2 đến 3 phòng ngủ. Thiết kế này được các gia đình trẻ ưa chuộng bởi sự cân bằng giữa thẩm mỹ và công năng.
Nhà phố 5×20 hiện đại 3 tầng có mặt tiền sáng tạo
Nhà phố cao tầng lấy sáng bằng những ô cửa sổ nhỏ cùng ban công rộng lớn
Những mẫu nhà 3 tầng hiện đại xu hướng mới thường ứng dụng vật liệu mới như bê tông đúc sẵn, thép sơn tĩnh điện kết hợp kính lớn. Kiến trúc thiên về các hình khối vuông vức, đường nét khỏe khoắn có hệ thống chiếu sáng hiện đại làm nổi bật cá tính gia chủ.
Mặt tiền nhà phố 5×20 mái bằng kết hợp lam chắn nắng
Mẫu này vừa mang nét cá tính mạnh vừa hiện đại phù hợp lối sống mới
Phong cách mái bằng kết hợp lam chắn tạo cá tính riêng, vừa giúp điều tiết ánh sáng vừa đảm bảo sự riêng tư cần thiết. Đây là xu hướng được nhiều gia chủ lựa chọn cho thiết kế nhà phố 5×20 hiện đại, mang đến vẻ ngoài hiện đại và “mát mắt”.
Mẫu nhà phố 5×20 hiện đại kết hợp sân vườn
Một góc nhỏ được làm thành sân vườn giúp ngôi nhà trông xanh và mát hơn
Mẫu nhà phố này tạo điểm nhấn bằng các tiểu cảnh ở sân vườn nhỏ, khai thác tối đa không gian để ngôi nhà gần gũi hơn với thiên nhiên. Thiết kế mang lại sự thư giãn giữa lòng thành phố chật chội, đồng thời cải thiện không khí và nâng cao chất lượng sống cho gia đình.
Kinh nghiệm và lưu ý khi thiết kế nhà phố 5×20 hiện đại
Chọn vật liệu bền đẹp, phù hợp với khí hậu
Vật liệu xây dựng và hoàn thiện ảnh hưởng lớn độ bền và thẩm mỹ của nhà phố 5×20 hiện đại. Nên ưu tiên chọn gạch, đá, kính cường lực, sơn ngoại thất chất lượng cao có khả năng chống ẩm, cách nhiệt và kháng thời tiết tốt.
Lưu ý về thủ tục pháp lý và xin phép xây dựng
Thiết kế nhà phố 5×20 hiện đại cần tuân thủ các quy định trong quy hoạch, chiều cao, mật độ xây dựng tại địa phương. Bạn nên chuẩn bị hồ sơ xin phép chuẩn chỉnh, phối hợp cùng đơn vị thiết kế hoặc nhà thầu uy tín để đảm bảo quá trình thi công thuận lợi, tránh phát sinh chi phí khác.
Dự toán chi phí và lên kế hoạch tài chính rõ ràng
Xác định ngân sách xây dựng luôn là bước đầu quan trọng để giúp kiểm soát và định hình phong cách phù hợp để hạn chế phát sinh vượt quá dự kiến. Bao gồm các phát sinh chính như phí thiết kế, vật liệu, nhân công, nội thất.
Lựa chọn đơn vị thiết kế và nhà thầu uy tín
Một trong những yếu tố quyết định sự thành công của một dự án chính là đội ngũ thiết kế và thi công chuyên nghiệp. Hãy tìm cho mình các đơn vị có kinh nghiệm thiết kế nhà phố 5×20 hiện đại với portfolio rõ ràng, cam kết tiến độ và chất lượng công trình.
Tối ưu hóa không gian sử dụng và công năng tiện nghi
Bố trí hợp cho từng phòng chức năng, sử dụng nội thất thông minh, đa năng giúp nhà phố 5×20 hiện đại trở nên tiện nghi và gọn gàng hơn. Đặc biệt là với những căn nhà có diện tích hạn chế, giải pháp này giúp tiết kiệm diện tích và mang hơi thở hiện đại vào lối sống.
Giữa muôn vàn hình mẫu thiết kế, điều quan trọng nhất là tìm được cho riêng mình một không gian sống phản ánh đúng nhu cầu, tiện nghi nhưng vẫn tinh gọn, có chiều sâu. Thiết kế nhà phố 5×20 hiện đại không chỉ là việc dựng nên bốn bức tường, mà là quá trình chăm chút từng đường nét, ánh sáng, vật liệu,… để biến 100m2 thành nơi gọi là nhà, một cách trọn vẹn nhất.
Nếu bạn đang ấp ủ một tổ ấm mang dấu ấn riêng, Minimal Design sẵn sàng đồng hành cùng bạn từ những ý tưởng ban đầu đến từng chi tiết thi công.
- Facebook: https://www.facebook.com/MINIMALDESIGNVN
- Địa chỉ: Tầng 7, 17 Hồ Bá Kiện, Phường 15, Quận 10, Tp.HCM
- SĐT: 0903 25 44 35 – Mr Đạt
Tham khảo ngay: 10+ Mẫu thiết kế nội thất nhà phố ĐẸP và ĐẲNG CẤP nhất
Xem thêm: MẪU NHÀ PHỐ BIỂN ĐẬM CHẤT NGHỈ DƯỠNG CHO GIA ĐÌNH. XEM NGAY!
























